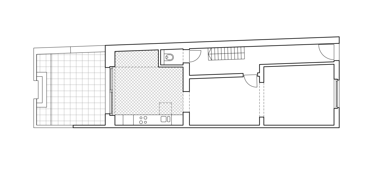
Saint-Martin

Extension et rénovation d’une habitation unifamiliale

Bruxelles, Belgique – 2015 – 45 m²

DeDal-St-Martin15.jpg

DeDal_PlansWEB_StMartin_181226

Situation d’origine