Extension et rénovation d’une habitation unifamiliale – Bruxelles, Belgique – 2018 – 180 m²
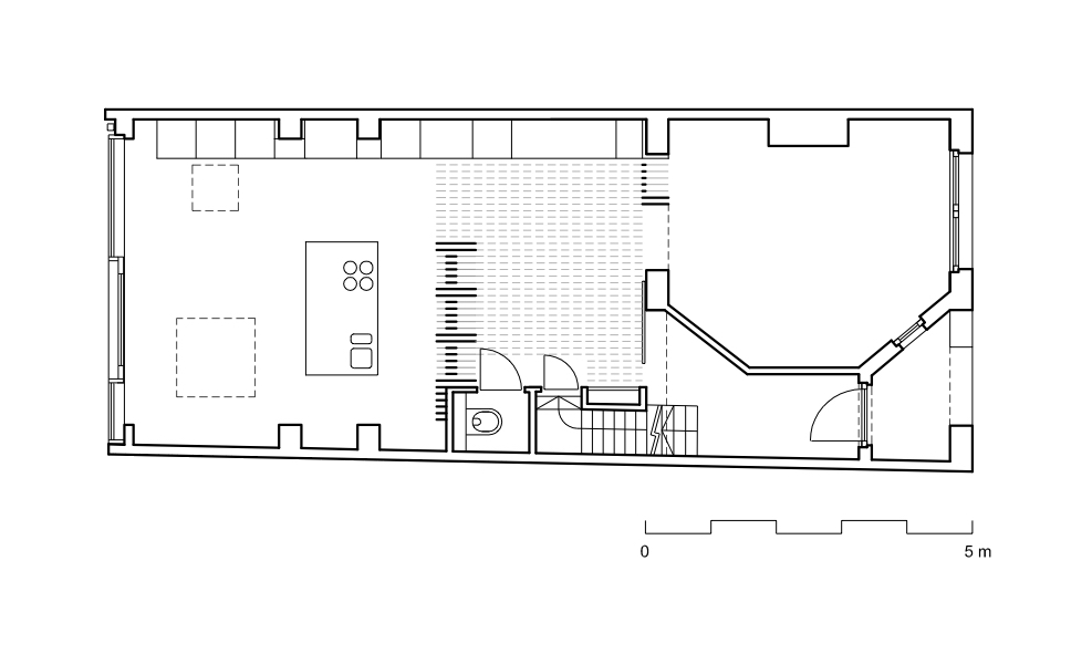
Située au sein du quartier du Terdelt sur la commune de Schaerbeek, cette habitation typique du début XXe possède les caractéristiques typiques de la petite maison de rangée bruxelloise. Avec ses deux pièces de vie en enfilade aboutissant dans une véranda et une circulation flanquée sur le coté, l’habitation présentait une configuration morcelée et centrée sur un espace sombre et exigu offrant peu de rapports visuels avec l’environnement extérieur. En 2015, un jeune couple d’infirmiers avec deux enfants, alors en bas âge, font l’acquisition de cette maison et décident d’adapter les lieux pour les rendre plus conformes à leur mode de vie. Leur profession ne leur laissant que peu de moments en famille, l’un des enjeux de l’intervention était d’ouvrir et reconnecter les espaces et fonctions de l’habitation en veillant à leur conférer une identité singulière. Tout en servant de zone de jeu, le meuble-bibliothèque se présente comme un espace à part entière qui articule des ambiances distinctes en filtrant subtilement la lumière et les vues entre l’avant et l’arrière de la maison. En jouant sur les contrastes et les effets de profondeur, l’architecture, le mobilier et les matières (bouleau/ grès cérame/ corian) viennent articuler l’atmosphère calme du salon et celle plus ouverte et lumineuse de la cuisine /salle-à-manger.
Photographies: © bepictures

Situation d’origine



















