Maison médicale l’Aster
Brussels, Belgium – 2024
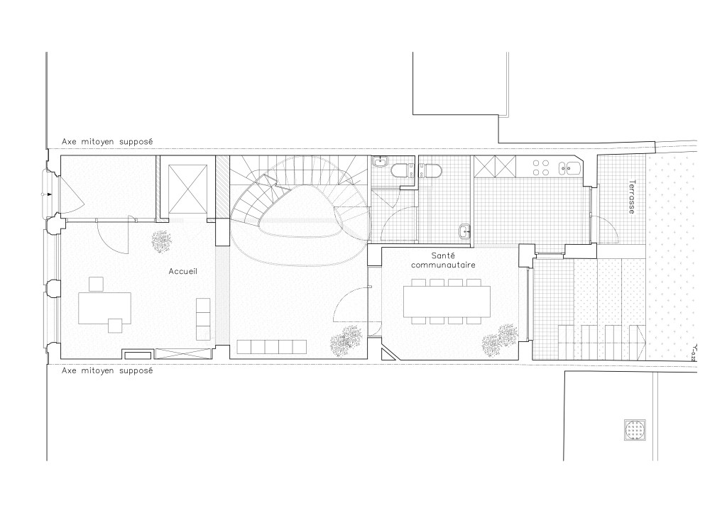
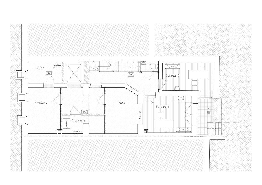
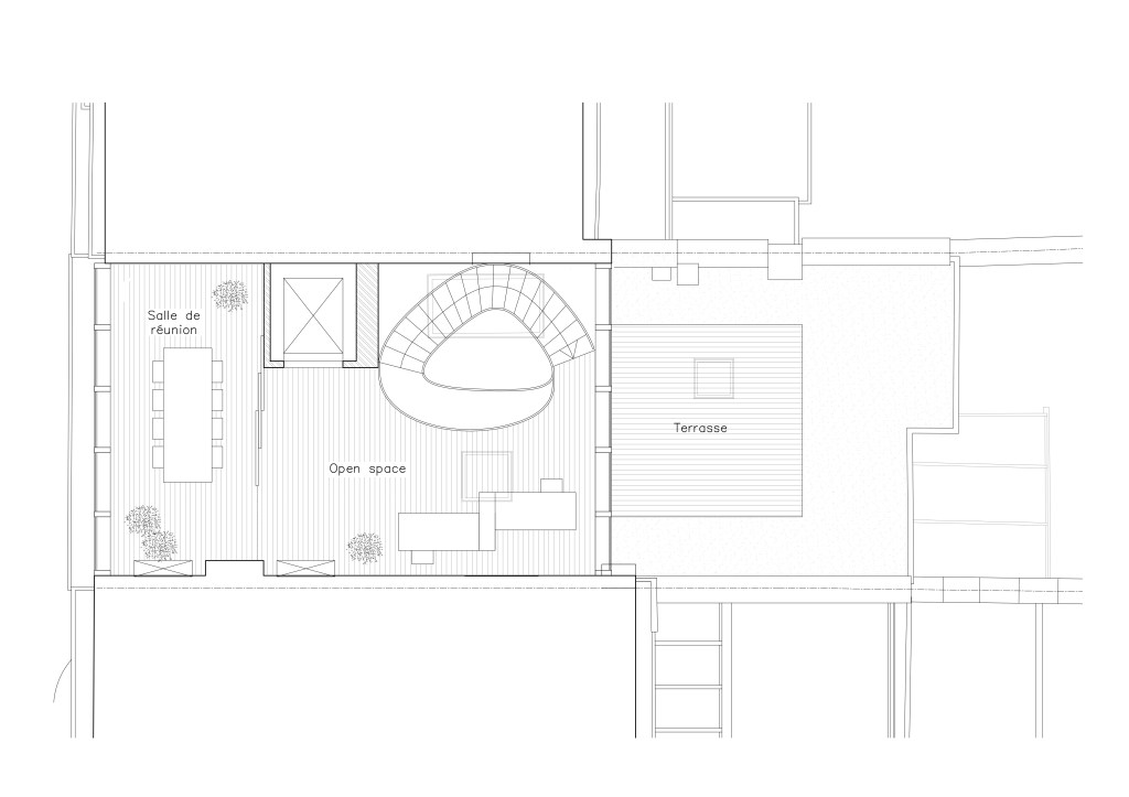
Ce projet porte sur la transformation et le réaménagement complet d’une maison médicale. Outre le travail sur la circulation, l’apport de lumière naturelle et le réaménagement des cabinets, l’une des grandes ambitions du projet est de penser les espaces collectifs à l’échelle du quartier, en intégrant des éléments qui encouragent la convivialité. Plus qu’un centre de soins, il s’agit, à travers l’architecture, de proposer des espaces et des moments d’interactions variés, tels que des zones de détente et des lieux de rencontre, pour favoriser les échanges entre les habitants et l’équipe médicale, créant ainsi une véritable dynamique communautaire qui améliore le bien-être des usagers. Dans cette démarche, la conception cherche à établir un dialogue entre le bâtiment et son environnement, afin de renforcer le lien social et de promouvoir une santé accessible à tous.
.

.

.

.

.

.

.

.

.

.






